Двухкомнатные апартаменты, 51,3м², в элитном комплексе на этапе строительства, в Махмутларе, Алания

# ID

17654

Добавить в избранное

Алания, Махмутлар

До моря: 800 м

Комнат: 1+1

До центра: 200 м

Площадь: 51,3 м²

Мебель: Нет

Год строительства: 2025

Этаж: 5

Предлагаем вашему вниманию комфортабельную квартиру с одной спальней в резиденции с богатой инфраструктурой, от одного из крупнейших застройщиков Алании, реализовавших большое количество качественных, пользующихся неизменным спросом, объектов.

Комплекс, будет введен в эксплуатацию в конце марта 2025 года. Состоит из одного тринадцатиэтажного блока, оформленного в сдержанных светлых тонах и дополненного элементами мягкой художественной подсветки. Резиденция расположена на большой закрытой территории, площадью 3469м². Это великолепный комплекс с широким спектром услуг, отвечающий всем требованиям современной комфортной жизни. Жилой комплекс располагается в окружении великолепной природы средиземноморья, а территория будет утопать в зелени. Придомовая территория благоустроена по высочайшему классу и станет комфортной и безопасной средой для отдыха жителей всех возрастов.

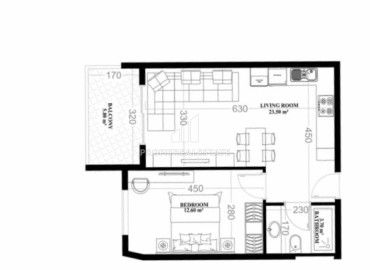
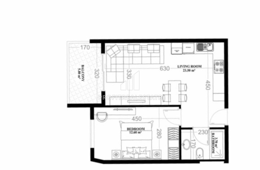
Предлагаемые апартаменты расположены на 5 этаже, планировки 1+1 площадью 51,3м². Планировкой предусмотрены просторная гостиная, объединенная с кухней американского типа, одна спальня, ванная комната и просторный балкон. Ванная комната укомплектована высококачественной сантехникой. Вместительный кухонный гарнитур имеет стильный дизайн, гранитную столешницу и большое количество шкафов с фасадами из лакированного МДФ.

Апартаменты продаются с высококачественной чистовой отделкой, укомплектованной ванной комнатой и кухонным гарнитуром, без мебели и бытовой техники. Обустроить апартаменты вы сможете по своему вкусу. Если в этих приятных хлопотах вам понадобится, помощь, то вам ее, с удовольствием, окажут наши сотрудники из отдела послепродажного сервиса.

Расположена резиденция в районе Махмутлар, в шаговой доступности от городской инфраструктуры и в 800м от Средиземного моря. Рядом с комплексом: сетевые магазины BIM, ŞOK, A101 и др., овощные лавки, аптека, салон красоты, кафе и ресторанчики с европейской и национальной кухней.

Махмутлар это самый крупный и развитый район, который чаще всего выбирают для комфортного отдыха и постоянного проживания. В данном районе хорошо развита городская инфраструктура и транспортная сеть. Дважды в неделю в Махмутларе проходит фермерский рынок. Прекрасная природа, близость моря и гор делают его местом притяжения для многих соискателей комфортабельной недвижимости на средиземноморском побережье. Более подробную информацию о районе вы можете получить на You Tube канале лицензированного агентства недвижимости

Если вас заинтересовало данное предложение, то дополнительные вопросы можно задать в on-line чате или связаться с нашими менеджерами любым, удобным для вас, способом.

Инфраструктура

  • Открытый плавательный бассейн с отдельной зоной для детей
  • Благоустроенный сад
  • Зона барбекю
  • Турецкая баня (Хаммам)
  • Римская паровая комната
  • Финская сауна
  • Массажные комнаты
  • Крытый бассейн с подогревом
  • Соляная комната
  • Фитнес центр
  • Детская игровая комната
  • Wi-Fi интернет на территории комплекса
  • Спутниковое телевидение
  • 24/7 видеонаблюдение
  • Охрана
  • Генератор

Получить подробную информацию об объекте

Хочу получить

Цена снижена: - 45 %

99 000 €

Старая цена: 127 500 €

Подробная информация об объекте

  • Полная информация о данном объекте и прайс-лист
  • Этапы процедуры приобретения недвижимости
  • Онлайн просмотр объекта
  • Информацию об ознакомительном туре
  • Новейшие предложения и скидки

Наши агенты

Юлия Байдан

Юлия Байдан

Руководитель отдела продаж

Алания

русский, турецкий, английский

10+ лет опыта

400+ продаж

Александра Сивец

Александра Сивец

Менеджер по продажам

Аланья

Русский, Английский

Получить подробную
информацию об объекте

Для получения подробной информации заполните форму и наш менеджер свяжется с Вами в ближайшее время
Хочу получить:
Обратный звонок

Мы свяжемся с Вами в ближайшее время
Благодарим за подписку

Загляните в свой почтовый ящик
Ваша заявка принята

Мы свяжемся с Вами в ближайшее время
Проконсультируем и поможем подобрать выгодные объекты

Недвижимость под инвестиции, ВНЖ и гражданство в Турции и на Северном Кипре.

Инвестируйте с умом!

Для получения подробной информации заполните форму и наш менеджер свяжется с Вами в ближайшее время

Проконсультируем и поможем подобрать выгодные объекты

Недвижимость под инвестиции, ВНЖ и гражданство в Турции и на Северном Кипре.

Инвестируйте с умом!

Для получения подробной информации заполните форму и наш менеджер свяжется с Вами в ближайшее время